Iqbal Construction Engineers & Planners is a professional construction and consultancy firm with over 15 years of experience, specializing in architectural planning, structural engineering, interior design, and project execution.
We provide complete house solutions under one roof, offering integrated services including architectural design, structural planning, construction execution, project management, and interior finishing. Our focus is on delivering modern designs, durable construction, and high-quality finishes in every project.
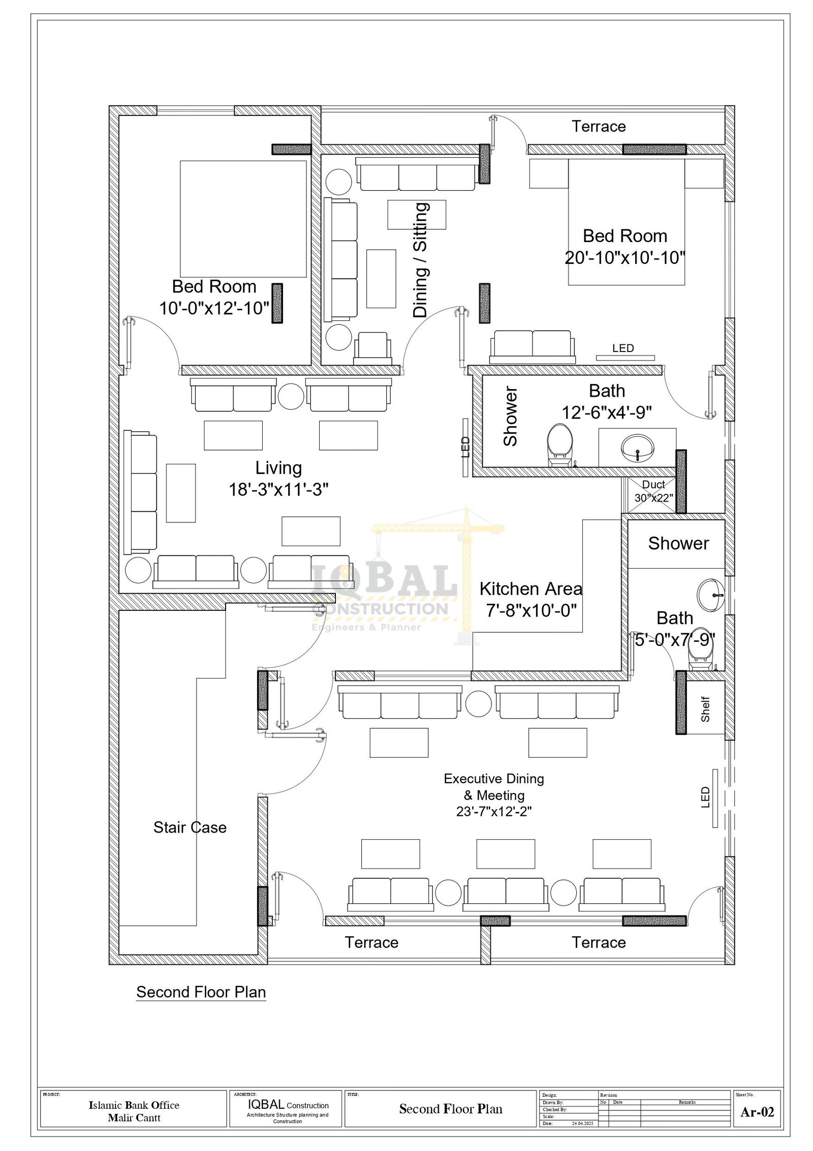
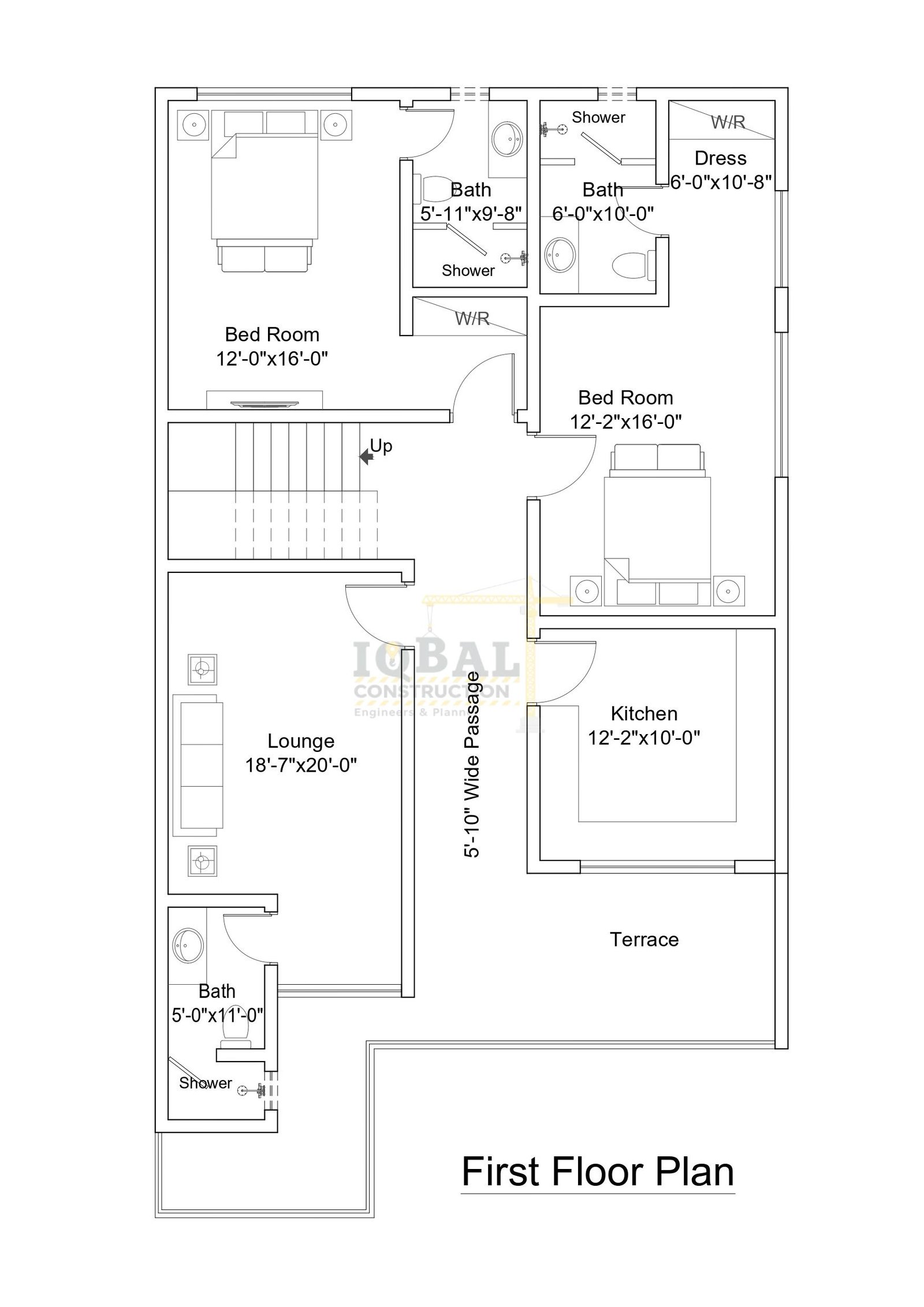
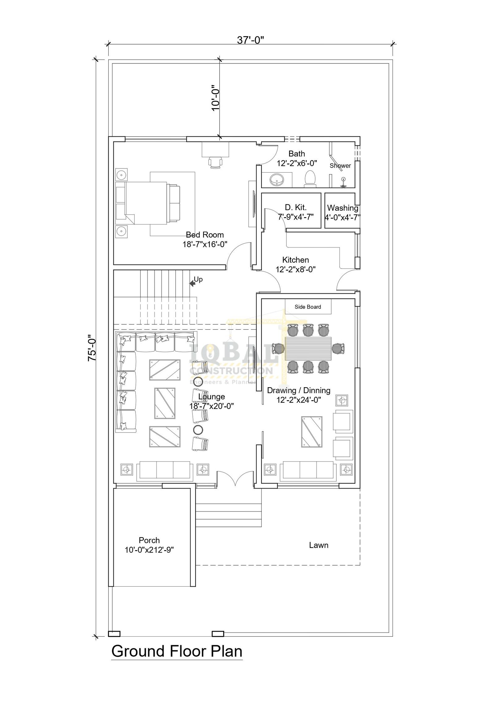
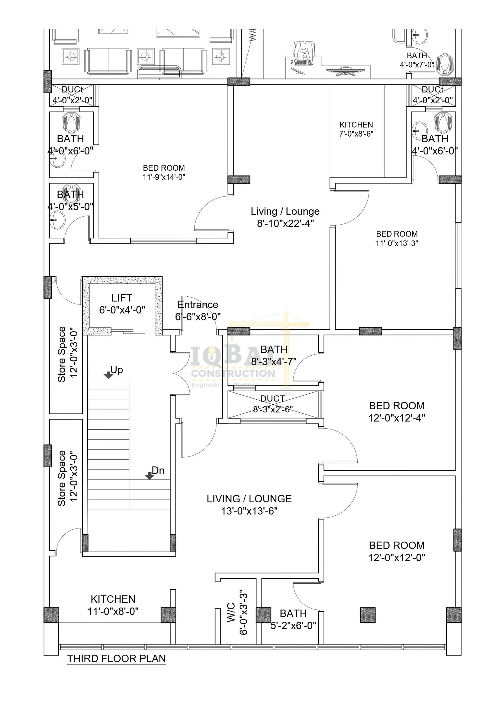
We have successfully completed projects across Karachi, including Precious Society and other residential communities, delivering professional and reliable construction services.
“Excellence is not an act, it’s a habit.”
This philosophy reflects our commitment to maintaining the highest standards of quality, professionalism, and efficiency in every project we undertake.